SINGOLA al GREZZO

Vendita | Rossano Veneto EUR 280.000

Codice: S288

Compila la form sottostante per richiedere informazioni

Dichiaro di aver letto ed accettato l'informativa sulla privacy.
(Leggi l'informativa)

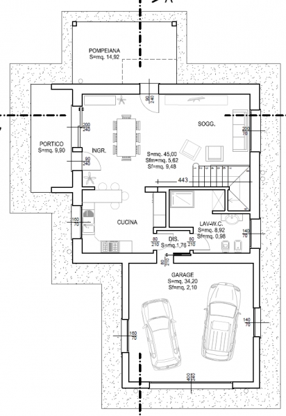
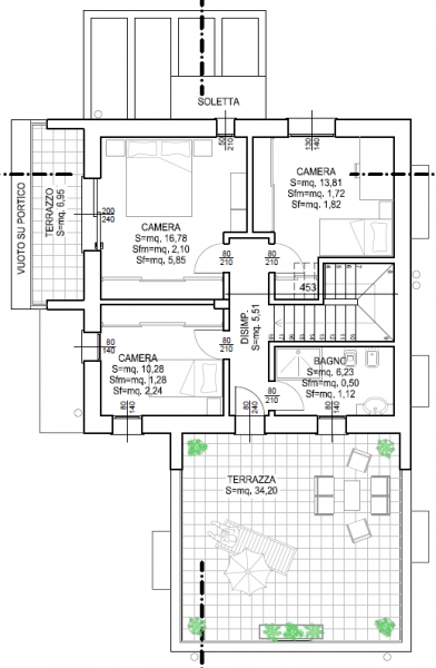
Zona Castion di Loria, vendesi singola su due piani. Zona giorno mq 45 con ampia pompeiana esterna, bagno/lavanderia al piano terra, garage mq 35 al primo piano ci sono tre camere di cui due matrimoniali e il bagno, stesso piano ampio terrazzo di mq 40, Il giardino tutto intorno la casa è di mq 700. Vendesi al grezzo e la Richiesta è di Euro 280.000 Trattabili. - Rif. S288 - (Al fine di tutelare la privacy dei nostri clienti, l'indirizzo inserito nel presente annuncio è puramente indicativo della zona) - Agenzia " IMMOBILIARE CONTE" di Onè di Fonte (TV) - Via Roma, 37A - Tel. 328.4052283 Dario Conte

Caratteristiche:

  • Superficie: 200.00 mq
  • Anno di costruzione: Non indicato
  • Bagni: 2
  • Giardino: 700.00
  • Camino
  • Doppio Ingresso
  • Illuminazione esterna
  • Impianto Indipendente
Condividi su Facebook